PMO田町Ⅳ 7階
物件概要
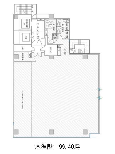
PMO田町Ⅳのテナント募集中区画
| 階数 | 面積 | 賃料(共益費含む) | 保証金 | 入居可能日 | 検討リスト | 詳細 |
|---|---|---|---|---|---|---|
| 6 | 99.40坪 | 応相談(応相談) | 応相談 | 即 | ||
| 7 | 99.40坪 | 応相談(応相談) | 応相談 | 即 | ||
| 8 | 99.40坪 | 応相談(応相談) | 応相談 | 2026年8月上旬 |
…新着物件
PMO田町Ⅳのアクセス
PMO田町Ⅳの物件情報
PMO田町Ⅳ(港区芝)は三田駅(A3番出口)から徒歩4分の賃貸オフィスです。2022年竣工、地上11階建て、基準階が99坪以上の新築オフィスビルとなります。外観は全体的にブラックを基調とした色合いで、全面ガラス張りとなっているため、スタイリッシュな印象があります。ビル内にはOAフロアが備えられており、トイレは男女別となっており、最新の設備が導入されております。駐車場も完備してあるため、車の利用もしやすい環境です。また周辺にはコンビニや飲食店などがあるため、ランチも楽しめるでしょう。PMO田町Ⅳは三田駅(A3番出口)の他に田町駅(三田口)徒歩5分、泉岳寺駅(A4番出口)徒歩11分で利用も可能です。

