9階は現在募集がありません
3フロア募集区画あり

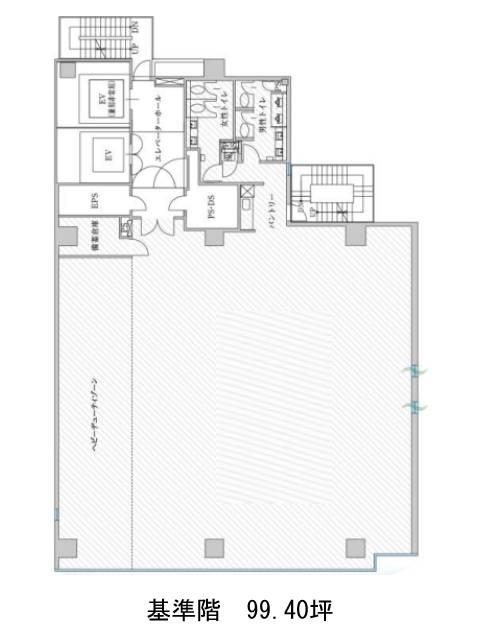
PMO田町Ⅳ 9階

前の写真 次の写真

物件概要

物件番号

126-00562-8

物件名

PMO田町Ⅳ

所在地

面積

99.40坪

賃料(共益費含)


入居日

募集終了

保証金

礼金

更新料

償却費

竣工

2022年6月

構造

S造

規模

地上11階

トイレ

男女別

空調

個別空調

エレベーター

セキュリティ

駐車場

耐震

新耐震基準

基準階天井高

2800mm

空室延床面積

298.20坪

最寄駅

情報更新日

2026/03/04

PMO田町Ⅳのテナント募集中区画

階数 面積 賃料(共益費含む) 保証金 入居可能日 検討リスト 詳細
6 99.40坪 応相談(応相談) 応相談
7 99.40坪 応相談(応相談) 応相談
8 99.40坪 応相談(応相談) 応相談 2026年8月上旬
…新着物件

PMO田町Ⅳのアクセス

PMO田町Ⅳの物件情報

PMO田町Ⅳ(港区芝)は三田駅(A3番出口)から徒歩4分の賃貸オフィスです。
2022年竣工、地上11階建て、基準階が99坪以上の新築オフィスビルとなります。外観は全体的にブラックを基調とした色合いで、全面ガラス張りとなっているため、スタイリッシュな印象があります。ビル内にはOAフロアが備えられており、トイレは男女別となっており、最新の設備が導入されております。駐車場も完備してあるため、車の利用もしやすい環境です。また周辺にはコンビニや飲食店などがあるため、ランチも楽しめるでしょう。
PMO田町Ⅳは三田駅(A3番出口)の他に田町駅(三田口)徒歩5分、泉岳寺駅(A4番出口)徒歩11分で利用も可能です。

近隣のエリア・駅から探す