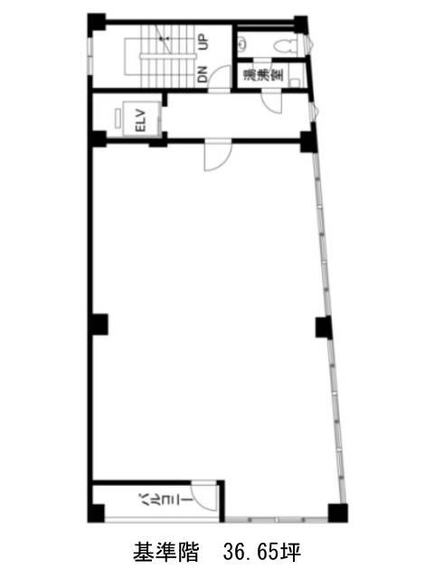
三田スクエアビルのテナント募集中区画
| 階数 | 面積 | 賃料(共益費含む) | 保証金 | 入居可能日 | 検討リスト | 詳細 |
|---|---|---|---|---|---|---|
| 4 | 36.65坪 | 620,400円/月(16,929円/坪) | 312万円 | 2026年3月中旬 | ||
| 6 | 36.65坪 | 620,400円/月(16,929円/坪) | 312万円 | 即 |
…新着物件
三田スクエアビルのアクセス
三田スクエアビルの物件情報
三田スクエアビル(港区芝)は三田駅(A3番出口)から徒歩3分の賃貸オフィスです。三田スクエアビルは三田駅(A3番出口)の他に田町駅(三田口)徒歩5分、赤羽橋駅(赤羽橋口)徒歩12分で利用も可能です。

