三田スクエアビル 6階
物件概要
物件番号
126-00568-4物件名
三田スクエアビル所在地
- 東京都港区芝5-25-9
- アクセスマップ
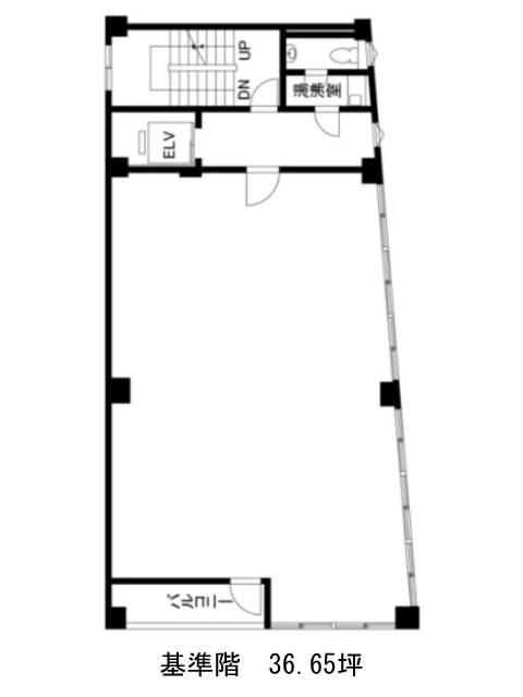
面積
36.65坪賃料(共益費含)
月額620,400円(16,929円/坪)
入居日
即保証金
3,120,161円礼金
なし更新料
新1ケ月償却費
なし竣工
1971年9月構造
RC規模
地上7階トイレ
男女共用空調
個別空調エレベーター
有セキュリティ
駐車場
無耐震
旧耐震基準基準階天井高
空室延床面積
73.30坪情報更新日
2026/03/11三田スクエアビルのテナント募集中区画
| 階数 | 面積 | 賃料(共益費含む) | 保証金 | 入居可能日 | 検討リスト | 詳細 |
|---|---|---|---|---|---|---|
| 4 | 36.65坪 | 620,400円/月(16,929円/坪) | 312万円 | 2026年3月中旬 | ||
| 6 | 36.65坪 | 620,400円/月(16,929円/坪) | 312万円 | 即 |
…新着物件
三田スクエアビルのアクセス
三田スクエアビルの物件情報
三田スクエアビル(港区芝)は三田駅(A3番出口)から徒歩3分の賃貸オフィスです。三田スクエアビルは三田駅(A3番出口)の他に田町駅(三田口)徒歩5分、赤羽橋駅(赤羽橋口)徒歩12分で利用も可能です。

