7階は現在募集がありません
1フロア募集区画あり

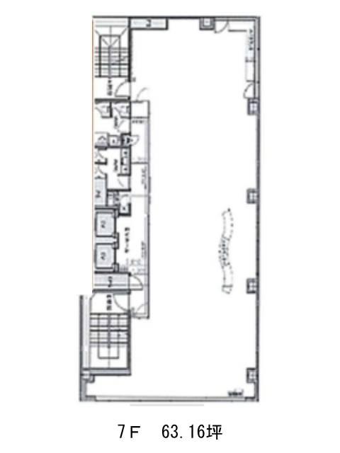
アパ三田芝公園駅前ビル 7階

前の写真 次の写真

物件概要

物件番号

126-00587-6

物件名

アパ三田芝公園駅前ビル

所在地

面積

63.16坪

賃料(共益費含)


入居日

募集終了

保証金

礼金

更新料

償却費

竣工

1993年2月

構造

SRC

規模

地上9階

トイレ

男女別

空調

個別空調

エレベーター

セキュリティ

駐車場

耐震

新耐震基準

基準階天井高

空室延床面積

64.26坪

最寄駅

情報更新日

2026/03/27

アパ三田芝公園駅前ビルのテナント募集中区画

階数 面積 賃料(共益費含む) 保証金 入居可能日 検討リスト 詳細
3 64.26坪 1,343,034円/月(20,900円/坪) 366万円
…新着物件

アパ三田芝公園駅前ビルのアクセス

アパ三田芝公園駅前ビルの物件情報

アパ三田芝公園駅前ビル(港区芝)は芝公園駅(A2番出口)から徒歩1分の賃貸オフィスです。
落ち着きある街並みに溶け込むように建つこちらのビルは、2015年に共用部をリニューアル済み。細やかに設計された照明や、落ち着いた色味のタイル、レンガ調の壁面などが組み合わさり、品のある空間を演出しています。エントランスからエレベーターホールまでの動線もゆったりとしており、来訪者にとっても好印象です。
基準階は60坪台の整形オフィスで、過去には分割利用の実績もあるため、柔軟な使い方が可能。室内は柱が少なく、レイアウトしやすい間取りです。水回りは室外に配置されており、執務エリアとのメリハリがつけやすい点もポイント。個別空調・OAフロア・機械警備など、機能面もしっかり揃っていて安心感があります。
アパ三田芝公園駅前ビルは芝公園駅(A2番出口)の他に三田駅(A10番出口)徒歩6分、赤羽橋駅(赤羽橋口)徒歩7分で利用も可能です。

近隣のエリア・駅から探す