田町第16藤島ビルのテナント募集中区画
| 階数 | 面積 | 賃料(共益費含む) | 保証金 | 入居可能日 | 検討リスト | 詳細 |
|---|---|---|---|---|---|---|
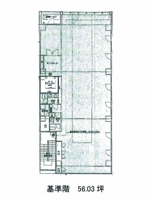
| 6 | 56.03坪 | 1,232,660円/月(22,000円/坪) | 952万円 | 2026年4月上旬 |
…新着物件
田町第16藤島ビルのアクセス
田町第16藤島ビルの物件情報
田町第16藤島ビル(港区芝)は三田駅(A9番出口)から徒歩3分の賃貸オフィスです。2016年竣工の物件ということもあり、建物自体が比較的綺麗です。外観はダークグレーに全面ガラス張りのつくりとなっており、スタイリッシュな印象があります。基準階は約50坪あり、室内はほぼ長方形の整形オフィスのため、比較的レイアウトは組みやすいでしょう。ビル内にはOAフロアも備えられており、トイレは男女別となっております。また機械式の駐車場が併設されており、車の利用もしやすいでしょう。周辺にはコンビニや飲食店、郵便局、銀行などがあるため、利便性が高いです。田町第16藤島ビルは三田駅(A9番出口)の他に田町駅(三田口)徒歩5分、芝公園駅(A1番出口)徒歩8分で利用も可能です。

