7階は現在募集がありません
田町第16藤島ビル 7階
物件概要
田町第16藤島ビルのテナント募集中区画
現在、空室がございません。
アクセス
田町第16藤島ビルの物件情報
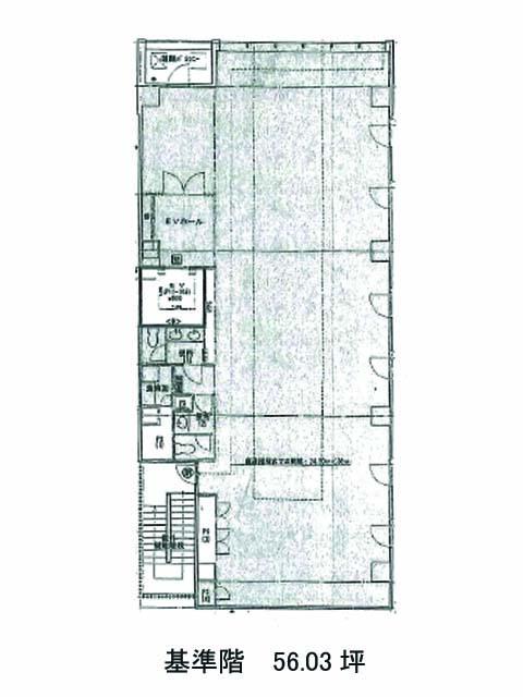
田町第16藤島ビル(港区芝)は三田駅(A9番出口)から徒歩3分の賃貸オフィスです。2016年竣工の物件ということもあり、建物自体が比較的綺麗です。外観はダークグレーに全面ガラス張りのつくりとなっており、スタイリッシュな印象があります。基準階は約50坪あり、室内はほぼ長方形の整形オフィスのため、比較的レイアウトは組みやすいでしょう。ビル内にはOAフロアも備えられており、トイレは男女別となっております。また機械式の駐車場が併設されており、車の利用もしやすいでしょう。周辺にはコンビニや飲食店、郵便局、銀行などがあるため、利便性が高いです。田町第16藤島ビルは三田駅(A9番出口)の他に田町駅(三田口)徒歩5分、芝公園駅(A1番出口)徒歩8分で利用も可能です。

