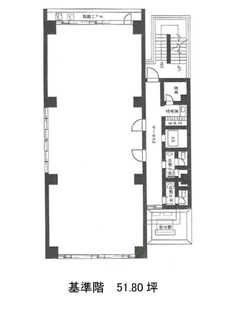
芝松下ビルのテナント募集中区画
| 階数 | 面積 | 賃料(共益費含む) | 保証金 | 入居可能日 | 検討リスト | 詳細 |
|---|---|---|---|---|---|---|
| 3 | 26.42坪 | 406,868円/月(15,400円/坪) | 290万円 | 即 |
…新着物件
アクセス
芝松下ビルの物件情報
芝松下ビル(港区芝)は芝公園駅(A2番出口)から徒歩3分の賃貸オフィスです。芝松下ビルは芝公園駅(A2番出口)の他に赤羽橋駅(赤羽橋口)徒歩6分、三田駅(A10番出口)徒歩8分で利用も可能です。

