7階は現在募集がありません
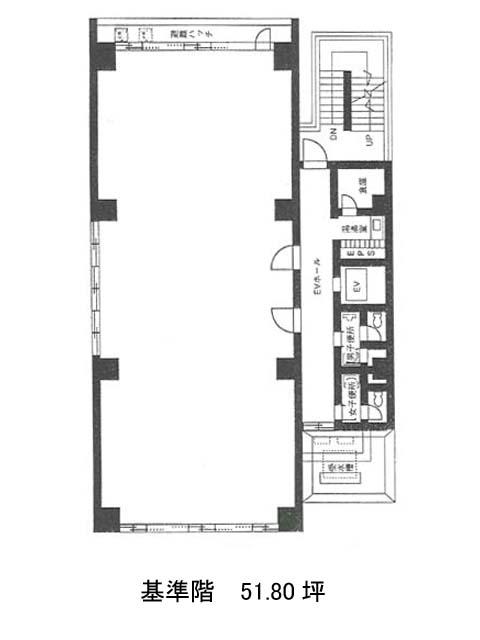
芝松下ビル 7階
物件概要
芝松下ビルのテナント募集中区画
現在、空室がございません。
芝松下ビルのアクセス
芝松下ビルの物件情報
芝松下ビル(港区芝)は芝公園駅(A2番出口)から徒歩3分の賃貸オフィスです。芝松下ビルは芝公園駅(A2番出口)の他に赤羽橋駅(赤羽橋口)徒歩6分、三田駅(A10番出口)徒歩8分で利用も可能です。

