2階は現在募集がありません
ITOビル 2階
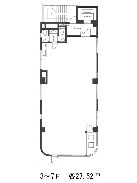
物件概要
ITOビルのテナント募集中区画
現在、空室がございません。
アクセス
ITOビルの物件情報
ITOビル(港区芝)は芝公園駅(A1番出口)から徒歩4分の賃貸オフィスです。ITOビルは芝公園駅(A1番出口)の他に三田駅(A9番出口)徒歩9分、大門駅(A6番出口)徒歩9分で利用も可能です。

