3階は現在募集がありません
1フロア募集区画あり

芝ブライトビル 3階

前の写真 次の写真

物件概要

物件番号

126-00098-10

物件名

芝ブライトビル

所在地

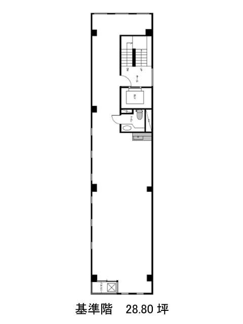
面積

28.80坪

賃料(共益費含)


入居日

募集終了

保証金

礼金

更新料

償却費

竣工

1994年2月

構造

S造

規模

地上5階

トイレ

男女共用

空調

個別空調

エレベーター

セキュリティ

駐車場

耐震

新耐震基準

基準階天井高

2500mm

空室延床面積

28.80坪

最寄駅

情報更新日

2026/02/20

芝ブライトビルのテナント募集中区画

階数 面積 賃料(共益費含む) 保証金 入居可能日 検討リスト 詳細
4 28.80坪 443,520円/月(15,400円/坪) 322万円
…新着物件

芝ブライトビルのアクセス

芝ブライトビルの物件情報

芝ブライトビル(港区芝)は芝公園駅(A1番出口)から徒歩4分の賃貸オフィスです。
芝ブライトビルは芝公園駅(A1番出口)の他に三田駅(A9番出口)徒歩9分、大門駅(A6番出口)徒歩9分で利用も可能です。

近隣のエリア・駅から探す