芝ブライトビル 4階
物件概要
物件番号
126-00098-20物件名
芝ブライトビル所在地
- 東京都港区芝2-10-1
- アクセスマップ
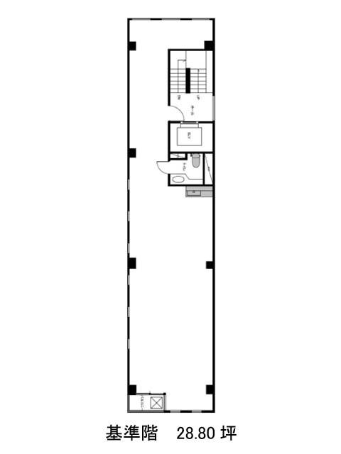
面積
28.80坪賃料(共益費含)
月額443,520円(15,400円/坪)
入居日
即保証金
3,225,600円礼金
なし更新料
新1ケ月償却費
2ケ月竣工
1994年2月構造
S造規模
地上5階トイレ
男女共用空調
個別空調エレベーター
有セキュリティ
駐車場
有耐震
新耐震基準基準階天井高
2500mm空室延床面積
28.80坪情報更新日
2026/02/20芝ブライトビルのテナント募集中区画
| 階数 | 面積 | 賃料(共益費含む) | 保証金 | 入居可能日 | 検討リスト | 詳細 |
|---|---|---|---|---|---|---|
| 4 | 28.80坪 | 443,520円/月(15,400円/坪) | 322万円 | 即 |
…新着物件
芝ブライトビルのアクセス
芝ブライトビルの物件情報
芝ブライトビル(港区芝)は芝公園駅(A1番出口)から徒歩4分の賃貸オフィスです。芝ブライトビルは芝公園駅(A1番出口)の他に三田駅(A9番出口)徒歩9分、大門駅(A6番出口)徒歩9分で利用も可能です。

