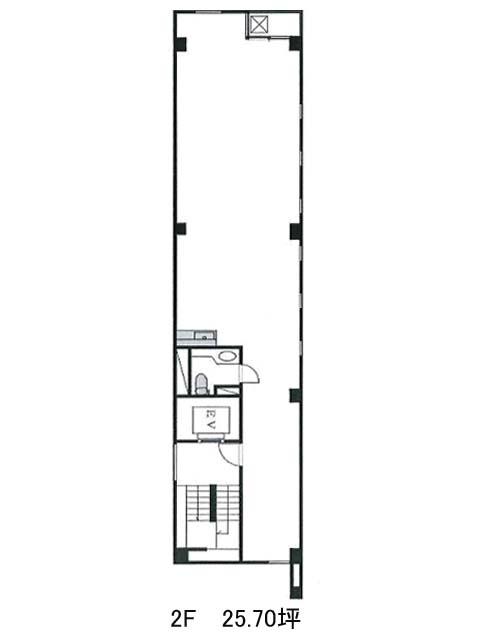
芝ブライトビルのテナント募集中区画
| 階数 | 面積 | 賃料(共益費含む) | 保証金 | 入居可能日 | 検討リスト | 詳細 |
|---|---|---|---|---|---|---|
| 4 | 28.80坪 | 443,520円/月(15,400円/坪) | 322万円 | 即 |
…新着物件
芝ブライトビルのアクセス
芝ブライトビルの物件情報
芝ブライトビル(港区芝)は芝公園駅(A1番出口)から徒歩4分の賃貸オフィスです。芝ブライトビルは芝公園駅(A1番出口)の他に三田駅(A9番出口)徒歩9分、大門駅(A6番出口)徒歩9分で利用も可能です。

