オー・アイ・芝浦のテナント募集中区画
| 階数 | 面積 | 賃料(共益費含む) | 保証金 | 入居可能日 | 検討リスト | 詳細 |
|---|---|---|---|---|---|---|
| 5 | 53.42坪 | 881,430円/月(16,500円/坪) | 480万円 | 即 |
…新着物件
アクセス
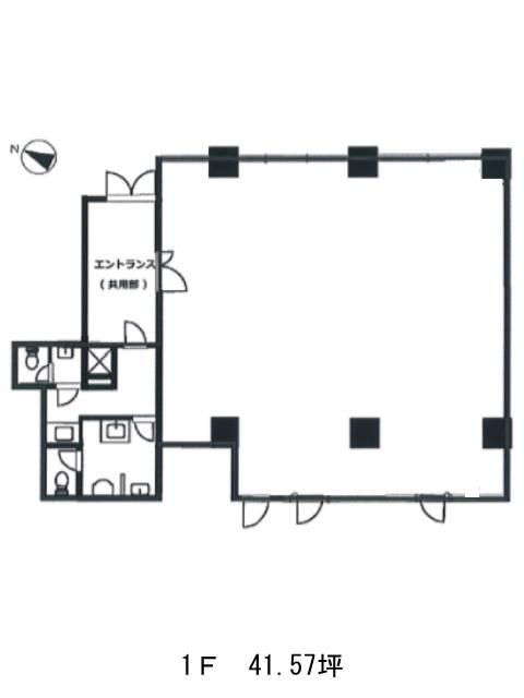
オー・アイ・芝浦の物件情報
オー・アイ・芝浦(港区芝浦)は田町駅(芝浦口)から徒歩7分の賃貸オフィスです。地上8階建、前面道路側に窓ガラスが並びすっきりとした外観のビルです。1987年竣工、新耐震基準に適合しています。共用部は白を基調とした明るい内装になっております。EV1基・駐車場・貸室外の男女別トイレ・個別空調・OAフロアといった設備仕様をしており、セキュリティとして機械警備を導入しています。二面採光で室内に十分な明るさを取り入れられるでしょう。徒歩圏内に郵便局・レストラン・コンビニがあり普段使いにご利用頂けます。オー・アイ・芝浦は田町駅(芝浦口)の他に三田駅(A4番出口)徒歩11分、芝浦ふ頭駅(東口)徒歩14分で利用も可能です。

