7階 7-8は現在募集がありません
2フロア募集区画あり

オー・アイ・芝浦 7階 7-8

前の写真 次の写真

物件概要

物件番号

127-00015-70

物件名

オー・アイ・芝浦

所在地

面積

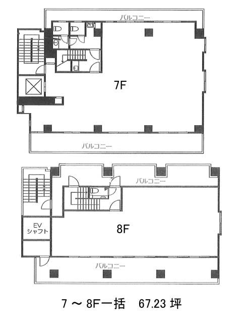
67.23坪

賃料(共益費含)


入居日

募集終了

保証金

礼金

更新料

償却費

竣工

1987年5月

構造

SRC

規模

地上8階

トイレ

男女別

空調

個別空調

エレベーター

セキュリティ

駐車場

耐震

新耐震基準

基準階天井高

空室延床面積

106.84坪

最寄駅

情報更新日

2026/02/12

オー・アイ・芝浦のテナント募集中区画

階数 面積 賃料(共益費含む) 保証金 入居可能日 検討リスト 詳細
5 53.42坪 881,430円/月(16,500円/坪) 480万円
6 53.42坪 822,668円/月(15,400円/坪) 448万円
…新着物件

オー・アイ・芝浦のアクセス

オー・アイ・芝浦の物件情報

オー・アイ・芝浦(港区芝浦)は田町駅(芝浦口)から徒歩7分の賃貸オフィスです。
地上8階建、前面道路側に窓ガラスが並びすっきりとした外観のビルです。1987年竣工、新耐震基準に適合しています。共用部は白を基調とした明るい内装になっております。EV1基・駐車場・貸室外の男女別トイレ・個別空調・OAフロアといった設備仕様をしており、セキュリティとして機械警備を導入しています。二面採光で室内に十分な明るさを取り入れられるでしょう。徒歩圏内に郵便局・レストラン・コンビニがあり普段使いにご利用頂けます。
オー・アイ・芝浦は田町駅(芝浦口)の他に三田駅(A4番出口)徒歩11分、芝浦ふ頭駅(東口)徒歩14分で利用も可能です。

近隣のエリア・駅から探す