4階は現在募集がありません

シグマビル 4階

前の写真 次の写真

物件概要

物件番号

127-00158-40

物件名

シグマビル

所在地

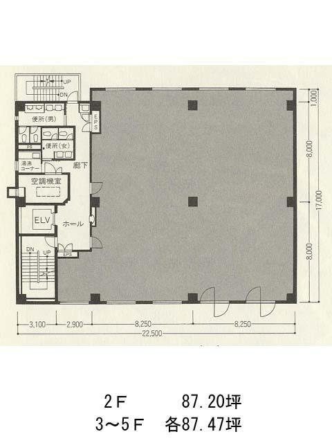
面積

87.47坪

賃料(共益費含)


入居日

募集終了

保証金

礼金

更新料

償却費

竣工

1990年3月

構造

規模

地上6階/地下1階

トイレ

男女別

空調

セントラル+個別空調

エレベーター

セキュリティ

駐車場

耐震

新耐震基準

基準階天井高

2550mm

空室延床面積

最寄駅

情報更新日

2024/08/26

シグマビルのテナント募集中区画

現在、空室がございません。

シグマビルのアクセス

シグマビルの物件情報

シグマビル(港区芝浦)は田町駅(芝浦口)から徒歩4分の賃貸オフィスです。
1990年竣工。外観は全体的に重厚感のある色合いをしており、シンプルなデザインとなっております。エントランスホールやエレベーターホールは清潔感があり、落ち着いた空間となっております。基準階面積は約80坪。貸室内にはOAフロアが備えられており、トイレは男女別、セキュリティは機械警備を導入しているため、安心です。また、駐車場もあるため、社用車を使う場合も便利です。また周辺にはコンビニや飲食店、銀行などがあり、駅からも近いので、利便性が高いです。
シグマビルは田町駅(芝浦口)の他に三田駅(A4番出口)徒歩7分、芝浦ふ頭駅(西口)徒歩14分で利用も可能です。

近隣のエリア・駅から探す