6階は現在募集がありません
シグマビル 6階
物件概要
シグマビルのテナント募集中区画
現在、空室がございません。
アクセス
シグマビルの物件情報
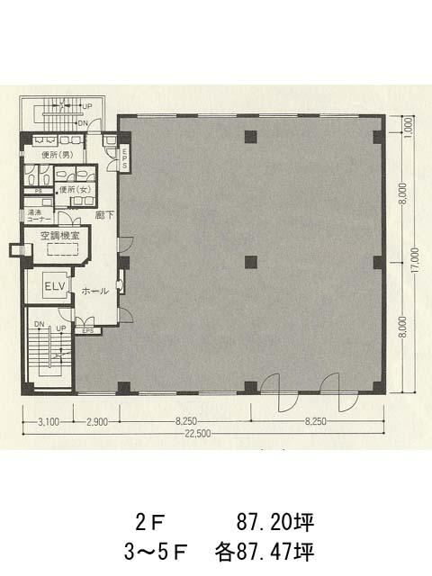
シグマビル(港区芝浦)は田町駅(芝浦口)から徒歩4分の賃貸オフィスです。1990年竣工。外観は全体的に重厚感のある色合いをしており、シンプルなデザインとなっております。エントランスホールやエレベーターホールは清潔感があり、落ち着いた空間となっております。基準階面積は約80坪。貸室内にはOAフロアが備えられており、トイレは男女別、セキュリティは機械警備を導入しているため、安心です。また、駐車場もあるため、社用車を使う場合も便利です。また周辺にはコンビニや飲食店、銀行などがあり、駅からも近いので、利便性が高いです。シグマビルは田町駅(芝浦口)の他に三田駅(A4番出口)徒歩7分、芝浦ふ頭駅(西口)徒歩14分で利用も可能です。

