6階は現在募集がありません
第2テーワイビル(第2TYビル) 6階
物件概要
第2テーワイビル(第2TYビル)のテナント募集中区画
現在、空室がございません。
アクセス
第2テーワイビル(第2TYビル)の物件情報
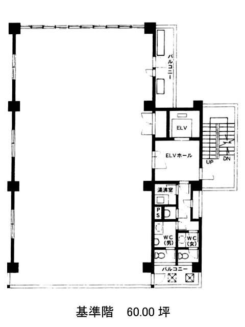
第2テーワイビル(第2TYビル)(港区芝浦)は田町駅(芝浦口)から徒歩8分の賃貸オフィスです。1989年竣工、地上7階建てのビルです。外観は、落ち着いた色合いで、窓がライン状に並んでいるため、統一感があります。エレベーターホールは清潔感があり、落ち着いた空間となっております。基準階は約60坪あり、室内は長方形の整形オフィスのため、とても効率の良いレイアウトが組めそうです。ビル内にはOAフロアが備えられており、トイレは男女別となっております。少し歩くと、コンビニや飲食店などがあるため、ランチ時に活用できるでしょう。第2テーワイビル(第2TYビル)は田町駅(芝浦口)の他に芝浦ふ頭駅(西口)徒歩10分、三田駅(A5番出口)徒歩12分で利用も可能です。

