3階は現在募集がありません
COAST芝浦 3階
物件概要
COAST芝浦のテナント募集中区画
現在、空室がございません。
アクセス
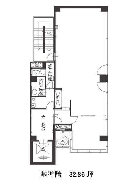
COAST芝浦の物件情報
COAST芝浦(港区芝浦)は田町駅(芝浦口)から徒歩8分の賃貸オフィスです。COAST芝浦は田町駅(芝浦口)の他に芝浦ふ頭駅(西口)徒歩10分、三田駅(A5番出口)徒歩11分で利用も可能です。

