Expert TAMACHI/Expert 田町 6階
物件概要
物件番号
127-00214-6物件名
Expert TAMACHI/Expert 田町所在地
- 東京都港区芝浦3-6-14
- アクセスマップ
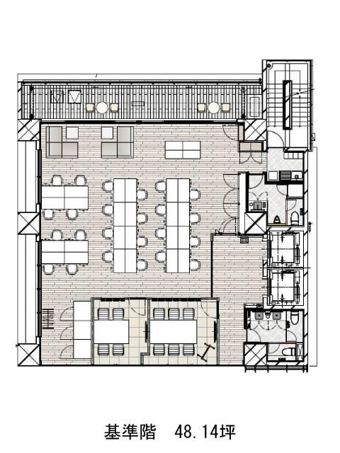
面積
48.14坪賃料(共益費含)
月額1,906,344円(39,600円/坪)
入居日
即保証金
応相談礼金
なし更新料
なし償却費
なし竣工
2024年10月構造
RC規模
地上11階トイレ
男女別空調
個別空調エレベーター
有セキュリティ
有駐車場
無耐震
新耐震基準基準階天井高
2975mm空室延床面積
48.14坪情報更新日
2025/12/18Expert TAMACHI/Expert 田町のテナント募集中区画
| 階数 | 面積 | 賃料(共益費含む) | 保証金 | 入居可能日 | 検討リスト | 詳細 |
|---|---|---|---|---|---|---|
| 6 | 48.14坪 | 1,906,344円/月(39,600円/坪) | 応相談 | 即 |
…新着物件
アクセス
Expert TAMACHI/Expert 田町の物件情報
Expert TAMACHI/Expert 田町(港区芝浦)は田町駅(芝浦口)から徒歩5分の賃貸オフィスです。芝浦エリアに誕生した本物件は、洗練されたデザインと機能性が融合したフルセットアップオフィス。
基準階約48坪ながら、貸室内には多様なレイアウトが組まれており、個室や会議スペース、集中・コラボエリアなど用途に応じた柔軟な活用が可能です。さらに、執務空間に隣接するテラスに加え、屋上にも水辺を望む共用テラスを完備。都心にありながら開放感を得られる環境は、従業員のモチベーション向上やリフレッシュにも一役買いそうです。
エントランスからエレベーターホールにかけては、明るく高級感のある内装設計。来客対応にも安心できる印象です。エレベーター2基を備えた構成や、洗練された建物ファサードなど、働く空間としての快適性と企業ブランディングを両立させるスペックが揃っています。Expert TAMACHI/Expert 田町は田町駅(芝浦口)の他に三田駅(A4番出口)徒歩9分、泉岳寺駅(A4番出口)徒歩15分で利用も可能です。

