5階は現在募集がありません
1フロア募集区画あり

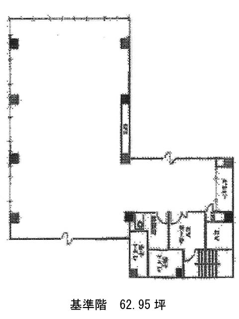
岡家寿ビル 5階

前の写真 次の写真

物件概要

物件番号

127-00023-40

物件名

岡家寿ビル

所在地

面積

62.95坪

賃料(共益費含)


入居日

募集終了

保証金

礼金

更新料

償却費

竣工

1990年9月

構造

RC

規模

地上6階

トイレ

男女別

空調

個別空調

エレベーター

セキュリティ

駐車場

耐震

新耐震基準

基準階天井高

空室延床面積

62.95坪

最寄駅

情報更新日

2026/04/30

岡家寿ビルのテナント募集中区画

階数 面積 賃料(共益費含む) 保証金 入居可能日 検討リスト 詳細
2 62.95坪 1,107,920円/月(17,600円/坪) 818万円
…新着物件

岡家寿ビルのアクセス

岡家寿ビルの物件情報

岡家寿ビル(港区芝浦)は日の出駅(東口)から徒歩8分の賃貸オフィスです。
1990年竣工、地上6階建て、鉄筋コンクリート造のビルです。外観は全体的にシックな色合いで、黒と白のツートンカラーのシンプルなデザインとなっております。基準階は約62坪あり、室内はL字型となっておりますが整形されたフロアのため、効率の良いレイアウトが組めそうです。ビル内にはOAフロアが備えられており、トイレは男女別となっております。周辺にはコンビニなどがあり、ビルの1階にはスーパーが入っているため、休憩時などに活用できそうです。
岡家寿ビルは日の出駅(東口)の他に三田駅(A9番出口)徒歩8分、田町駅(芝浦口)徒歩10分で利用も可能です。

近隣のエリア・駅から探す