岡家寿ビルのテナント募集中区画
| 階数 | 面積 | 賃料(共益費含む) | 保証金 | 入居可能日 | 検討リスト | 詳細 |
|---|---|---|---|---|---|---|
| 2 | 62.95坪 | 1,107,920円/月(17,600円/坪) | 818万円 | 即 |
…新着物件
岡家寿ビルのアクセス
岡家寿ビルの物件情報
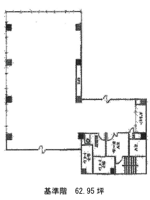
岡家寿ビル(港区芝浦)は日の出駅(東口)から徒歩8分の賃貸オフィスです。1990年竣工、地上6階建て、鉄筋コンクリート造のビルです。外観は全体的にシックな色合いで、黒と白のツートンカラーのシンプルなデザインとなっております。基準階は約62坪あり、室内はL字型となっておりますが整形されたフロアのため、効率の良いレイアウトが組めそうです。ビル内にはOAフロアが備えられており、トイレは男女別となっております。周辺にはコンビニなどがあり、ビルの1階にはスーパーが入っているため、休憩時などに活用できそうです。岡家寿ビルは日の出駅(東口)の他に三田駅(A9番出口)徒歩8分、田町駅(芝浦口)徒歩10分で利用も可能です。

