CANAL GATE 芝浦のテナント募集中区画
| 階数 | 面積 | 賃料(共益費含む) | 保証金 | 入居可能日 | 検討リスト | 詳細 |
|---|---|---|---|---|---|---|
| 4 | 71.03坪 | 応相談(応相談) | 応相談 | 2026年8月上旬 |
…新着物件
アクセス
CANAL GATE 芝浦の物件情報
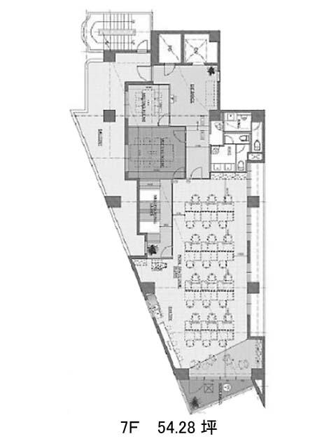
CANAL GATE 芝浦(港区芝浦)は田町駅(芝浦口)から徒歩9分の賃貸オフィスです。外観は全体的に茶系の色合いをしており、ビルの箇所ごとに異なる形で構成された特徴的なデザインとなっております。基準階は約71坪あり、室内は無柱の台形ですので、比較的レイアウトは組みやすいでしょう。窓からは芝浦運河の気持ちのいい景色が眺められます。ビル内にはOAフロアが備えられており、個別空調も完備されていて、トイレも男女別となっているため設備面は充実しています。セキュリティは機械警備を導入し、耐震性も新耐震基準であるため、安心です。また周辺にはコンビニや飲食店などが複数あるため、ランチが楽しめるでしょう。CANAL GATE 芝浦は田町駅(芝浦口)の他に三田駅(A4番出口)徒歩12分で利用も可能です。

