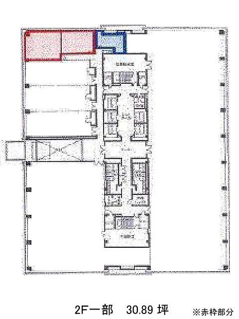
2階は現在募集がありません
芝浦清水ビル 2階
物件概要
芝浦清水ビルのテナント募集中区画
現在、空室がございません。
アクセス
芝浦清水ビルの物件情報
芝浦清水ビル(港区芝浦)は田町駅(芝浦口)から徒歩12分の賃貸オフィスです。海岸通り沿いに立地しているため、視認性が高いでしょう。グレーの石張りの外壁に、窓がライン状に並ぶフラットで直線的な外観です。ビル内にはOAフロアが備えられており、トイレは男女別となっております。駐車場も完備してあるため、社用車を使う場合も便利です。エレベーターは5基も設置されているため、待ち時間は少ないでしょう。セキュリティは機械警備を導入していて、耐震性も新耐震基準であるため、安心です。また周辺にはコンビニや飲食店、郵便局などが複数あるためとても利便性が高いです。芝浦清水ビルは田町駅(芝浦口)の他に泉岳寺駅(A4番出口)徒歩13分、三田駅(A4番出口)徒歩15分で利用も可能です。

