3階は現在募集がありません
芝浦TYビル 3階
物件概要
芝浦TYビルのテナント募集中区画
現在、空室がございません。
アクセス
芝浦TYビルの物件情報
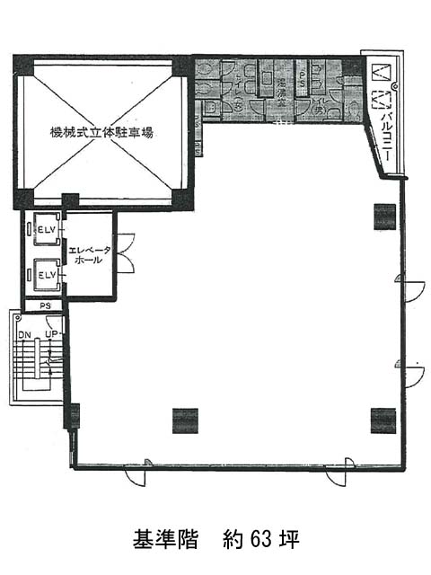
芝浦TYビル(港区芝浦)は田町駅(芝浦口)から徒歩9分の賃貸オフィスです。地上8階建、1989年竣工の新耐震基準に適合したビルです。角地に建ち、視認性が高いでしょう。設備仕様として、EV・駐車場・個別空調・男女別トイレ・バルコニーがあり、床はOAフロアを導入しています。大きなガラス窓の二面採光で明るい室内となるでしょう。外観は淡いグレーの壁面で、エントランスまわりに植栽が施されています。共用部は白を基調とした明るい内装になっています。交差点をはさんで南浜町児童遊園があり、緑あふれる眺望をお楽しみ頂けるでしょう。芝浦TYビルは田町駅(芝浦口)の他に三田駅(A9番出口)徒歩10分、日の出駅(東口)徒歩10分で利用も可能です。

