キャナルスクエア芝浦のテナント募集中区画
| 階数 | 面積 | 賃料(共益費含む) | 保証金 | 入居可能日 | 検討リスト | 詳細 |
|---|---|---|---|---|---|---|
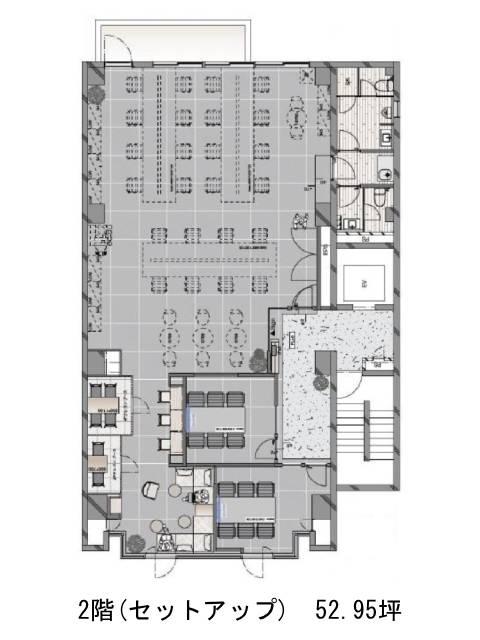
| 5 | 52.95坪 | 1,514,370円/月(28,600円/坪) | 826万円 | 2026年4月上旬 |
…新着物件
アクセス
キャナルスクエア芝浦の物件情報
キャナルスクエア芝浦(港区芝浦)は田町駅(芝浦口)から徒歩5分の賃貸オフィスです。グレーの外壁で統一された外観に、エントランスは木材と石材が調和した、とてもスタイリッシュなデザインです。ビルの1Fには飲食店が営業しています。ビル内にはOAフロアが備えられており、個別空調も完備されていて、トイレも男女別となっているため設備面は充実しております。エレベーターは1基設置されており、駐車場も完備しているため、車の利用もしやすい環境となっております。セキュリティは機械警備やオートロックシステムを導入していて、耐震性も新耐震基準であるため、安心です。キャナルスクエア芝浦は田町駅(芝浦口)の他に三田駅(A4番出口)徒歩9分、泉岳寺駅(A4番出口)徒歩15分で利用も可能です。

