根本ビル 2階
物件概要
物件番号
127-00050-10物件名
根本ビル所在地
- 東京都港区芝浦3-11-7
- アクセスマップ
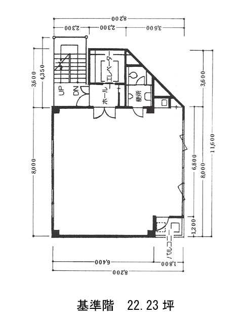
面積
22.23坪賃料(共益費含)
月額379,021円(17,050円/坪)
入居日
2026年7月上旬保証金
2,223,000円礼金
なし更新料
なし償却費
2ケ月竣工
1986年構造
SRC規模
地上8階トイレ
男女共用空調
個別空調エレベーター
有セキュリティ
有駐車場
無耐震
新耐震基準基準階天井高
空室延床面積
22.23坪情報更新日
2026/03/13根本ビルのテナント募集中区画
| 階数 | 面積 | 賃料(共益費含む) | 保証金 | 入居可能日 | 検討リスト | 詳細 |
|---|---|---|---|---|---|---|
| 2 | 22.23坪 | 379,021円/月(17,050円/坪) | 222万円 | 2026年7月上旬 |
…新着物件
根本ビルのアクセス
根本ビルの物件情報
根本ビル(港区芝浦)は田町駅(芝浦口)から徒歩5分の賃貸オフィスです。根本ビルは田町駅(芝浦口)の他に三田駅(A4番出口)徒歩8分、芝浦ふ頭駅(西口)徒歩12分で利用も可能です。

