7階は現在募集がありません
1フロア募集区画あり

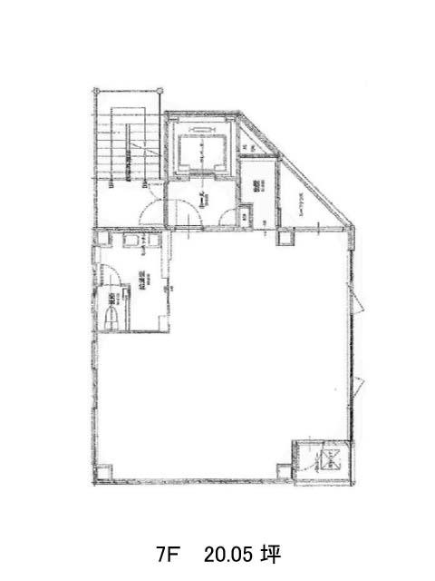
根本ビル 7階

前の写真 次の写真

物件概要

物件番号

127-00050-41

物件名

根本ビル

所在地

面積

20.05坪

賃料(共益費含)


入居日

募集終了

保証金

礼金

更新料

償却費

竣工

1986年

構造

SRC

規模

地上8階

トイレ

男女共用

空調

個別空調

エレベーター

セキュリティ

駐車場

耐震

新耐震基準

基準階天井高

空室延床面積

22.23坪

最寄駅

情報更新日

2026/03/13

根本ビルのテナント募集中区画

階数 面積 賃料(共益費含む) 保証金 入居可能日 検討リスト 詳細
2 22.23坪 379,021円/月(17,050円/坪) 222万円 2026年7月上旬
…新着物件

根本ビルのアクセス

根本ビルの物件情報

根本ビル(港区芝浦)は田町駅(芝浦口)から徒歩5分の賃貸オフィスです。
根本ビルは田町駅(芝浦口)の他に三田駅(A4番出口)徒歩8分、芝浦ふ頭駅(西口)徒歩12分で利用も可能です。

近隣のエリア・駅から探す