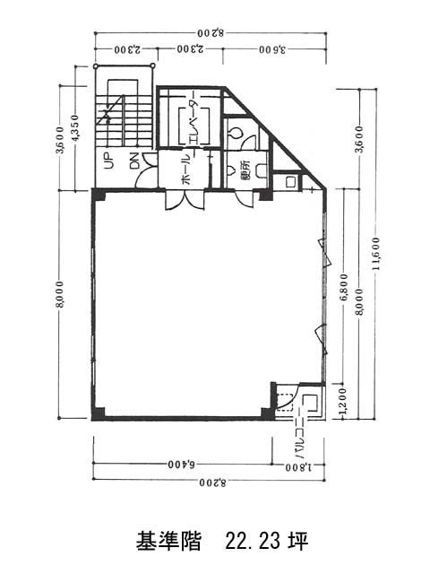
根本ビル 5階
物件概要
根本ビルのテナント募集中区画
| 階数 | 面積 | 賃料(共益費含む) | 保証金 | 入居可能日 | 検討リスト | 詳細 |
|---|---|---|---|---|---|---|
| 5 | 22.23坪 | 354,568円/月(15,950円/坪) | 204万円 | 相談 |
…新着物件
アクセス
根本ビルの物件情報
根本ビル(港区芝浦)は田町駅(芝浦口)から徒歩5分の賃貸オフィスです。根本ビルは田町駅(芝浦口)の他に三田駅(A4番出口)徒歩8分、芝浦ふ頭駅(西口)徒歩12分で利用も可能です。

