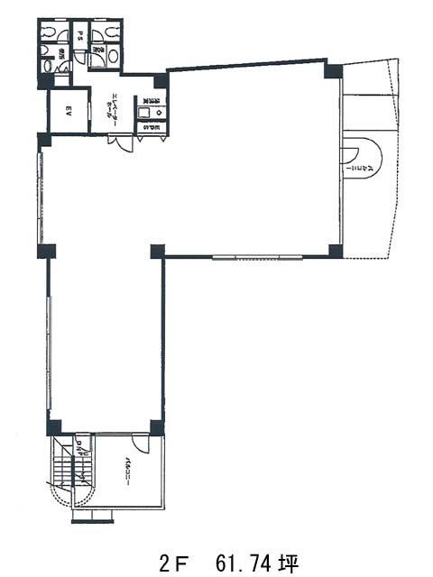
エムジー芝浦のテナント募集中区画
| 階数 | 面積 | 賃料(共益費含む) | 保証金 | 入居可能日 | 検討リスト | 詳細 |
|---|---|---|---|---|---|---|
| 3 | 67.25坪 | 887,700円/月(13,200円/坪) | 457万円 | 即 |
…新着物件
アクセス
エムジー芝浦の物件情報
エムジー芝浦(港区芝浦)は三田駅(A9番出口)から徒歩7分の賃貸オフィスです。エムジー芝浦は三田駅(A9番出口)の他に日の出駅(東口)徒歩9分、田町駅(芝浦口)徒歩10分で利用も可能です。

