6階 6-5は現在募集がありません
4フロア募集区画あり

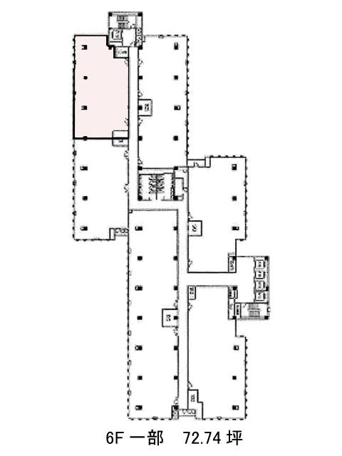
田町きよたビル 6階 6-5

前の写真 次の写真

物件概要

物件番号

127-00075-220

物件名

田町きよたビル

所在地

面積

72.74坪

賃料(共益費含)


入居日

募集終了

保証金

礼金

更新料

償却費

竣工

1982年5月

構造

SRC

規模

地上9階/地下1階

トイレ

男女別

空調

セントラル

エレベーター

セキュリティ

駐車場

耐震

耐震補強済み

基準階天井高

2430mm

空室延床面積

325.94坪

最寄駅

情報更新日

2026/01/16

田町きよたビルのテナント募集中区画

階数 面積 賃料(共益費含む) 保証金 入居可能日 検討リスト 詳細
6 87.10坪 応相談(応相談) 応相談 2026年4月上旬
6 81.50坪 応相談(応相談) 応相談 2026年4月上旬
7 70.24坪 応相談(応相談) 応相談 2026年4月上旬
7 87.10坪 応相談(応相談) 応相談 2026年4月上旬
…新着物件

アクセス

田町きよたビルの物件情報

田町きよたビル(港区芝浦)は田町駅(芝浦口)から徒歩12分の賃貸オフィスです。
田町きよたビルは田町駅(芝浦口)の他に三田駅(A1番出口)徒歩12分で利用も可能です。

近隣のエリア・駅から探す