第3協栄ビルのテナント募集中区画
| 階数 | 面積 | 賃料(共益費含む) | 保証金 | 入居可能日 | 検討リスト | 詳細 |
|---|---|---|---|---|---|---|
| 4 | 78.00坪 | 1,115,400円/月(14,300円/坪) | 624万円 | 即 |
…新着物件
第3協栄ビルのアクセス
第3協栄ビルの物件情報
第3協栄ビル(港区芝浦)は田町駅(芝浦口)から徒歩5分の賃貸オフィスです。旧海岸通り沿いに位置する本物件は、整った街並みと利便性を兼ね備えたオフィスロケーションです。最寄り駅からの道順も分かりやすく、来訪者にも安心感を与えられる立地です。周辺にはコンビニエンスストアや喫茶店が点在しており、日常的な利便性も良好。
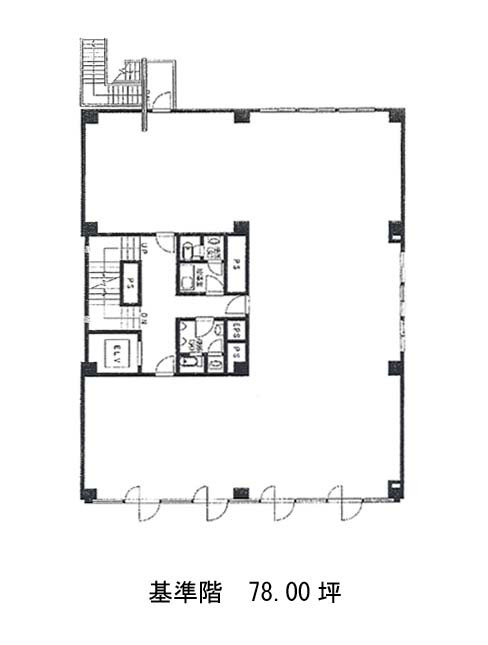
基準階は約78坪のコの字型で、水回りは共用部に集約。室内レイアウトの自由度が高く、分割貸しの実績もあるため、多様なワークスタイルや組織規模に対応可能です。さらに、OAフロア・個別空調・機械式駐車場を備えており、設備面でも安心感があります。第3協栄ビルは田町駅(芝浦口)の他に三田駅(A4番出口)徒歩8分、芝浦ふ頭駅(西口)徒歩12分で利用も可能です。

