3階は現在募集がありません
1フロア募集区画あり

第3協栄ビル 3階

前の写真 次の写真

物件概要

物件番号

127-00088-20

物件名

第3協栄ビル

所在地

面積

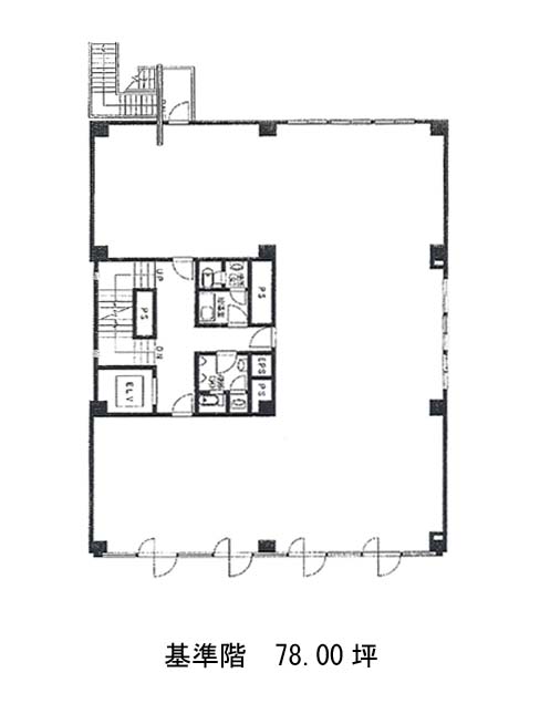
78.00坪

賃料(共益費含)


入居日

募集終了

保証金

礼金

更新料

償却費

竣工

1976年3月

構造

SRC

規模

地上7階

トイレ

男女別

空調

個別空調

エレベーター

セキュリティ

駐車場

耐震

旧耐震基準

基準階天井高

空室延床面積

78.00坪

最寄駅

情報更新日

2026/02/05

第3協栄ビルのテナント募集中区画

階数 面積 賃料(共益費含む) 保証金 入居可能日 検討リスト 詳細
4 78.00坪 1,115,400円/月(14,300円/坪) 624万円
…新着物件

第3協栄ビルのアクセス

第3協栄ビルの物件情報

第3協栄ビル(港区芝浦)は田町駅(芝浦口)から徒歩5分の賃貸オフィスです。
旧海岸通り沿いに位置する本物件は、整った街並みと利便性を兼ね備えたオフィスロケーションです。最寄り駅からの道順も分かりやすく、来訪者にも安心感を与えられる立地です。周辺にはコンビニエンスストアや喫茶店が点在しており、日常的な利便性も良好。
基準階は約78坪のコの字型で、水回りは共用部に集約。室内レイアウトの自由度が高く、分割貸しの実績もあるため、多様なワークスタイルや組織規模に対応可能です。さらに、OAフロア・個別空調・機械式駐車場を備えており、設備面でも安心感があります。
第3協栄ビルは田町駅(芝浦口)の他に三田駅(A4番出口)徒歩8分、芝浦ふ頭駅(西口)徒歩12分で利用も可能です。

近隣のエリア・駅から探す