7階は現在募集がありません
クローバー芝公園 7階
物件概要
クローバー芝公園のテナント募集中区画
現在、空室がございません。
クローバー芝公園のアクセス
クローバー芝公園の物件情報
クローバー芝公園(港区芝公園)は御成門駅(A2番出口)から徒歩2分の賃貸オフィスです。2006年竣工・地上9階建てのオフィスビル。全面ガラス張りの外観は清潔感があり、ひと目でグレードの高さを感じる物件です。ビルを囲うように施された植栽も手入れが行き届いており、品格を高めています。
エントランスホールはライン状のライティングがとても洗練された雰囲気。ダークグリーンの絨毯との相性も抜群です。エレベーターは2基設置済み。
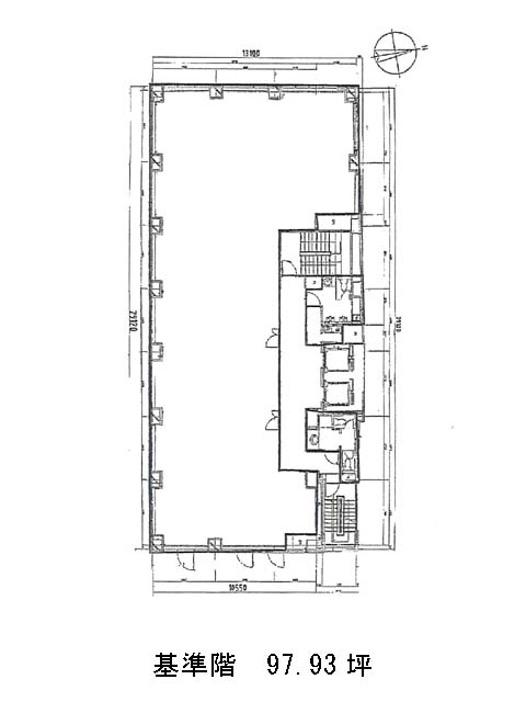
基準となるフロアは100坪弱の規模です。採光性に優れた執務室は柱もなく、広々とした空間ですのでフレキシブルなレイアウトが可能でしょう。東京タワーが見える眺望も大きな魅力の一つです。男女別トイレと給湯室は全て室外に設置されています。セキュリティは機械警備を採用。充実のオフィス環境で快適にお仕事をして頂けそうです。クローバー芝公園は御成門駅(A2番出口)の他に大門駅(A6番出口)徒歩5分、芝公園駅(A3番出口)徒歩8分で利用も可能です。

