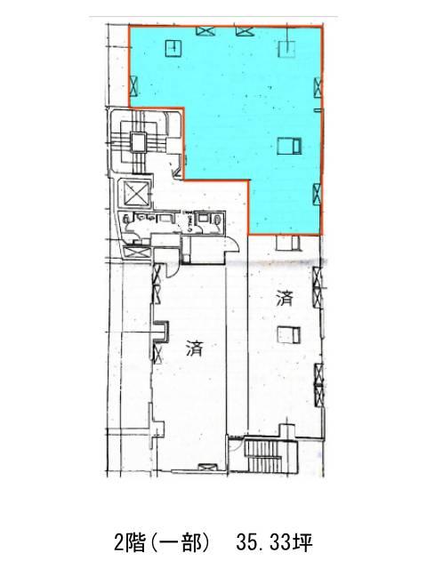
芝ロイヤービルのテナント募集中区画
| 階数 | 面積 | 賃料(共益費含む) | 保証金 | 入居可能日 | 検討リスト | 詳細 |
|---|---|---|---|---|---|---|
| 8 | 64.14坪 | 1,058,310円/月(16,500円/坪) | 577万円 | 2025年12月中旬 |
…新着物件
アクセス
芝ロイヤービルの物件情報
芝ロイヤービル(港区芝公園)は芝公園駅(A3番出口)から徒歩2分の賃貸オフィスです。地上8階建ての貸事務所ビル。外観はグレーのパネル張りです。エントランス~エレベーターホールはデザイン性のある配色が施されており、素敵です。
1フロアは最大約70坪の規模ですが、フロアや募集時期によって分割区画がございます。男女別トイレは室外に設置されていますので、執務室との区分けがしっかりしています。
当ビルは東京タワーに近い環境でお仕事のモチベーションもアップしそうです。芝ロイヤービルは芝公園駅(A3番出口)の他に大門駅(A6番出口)徒歩5分、浜松町駅(南口1)徒歩8分で利用も可能です。

