PMO浜松町Ⅱのテナント募集中区画
| 階数 | 面積 | 賃料(共益費含む) | 保証金 | 入居可能日 | 検討リスト | 詳細 |
|---|---|---|---|---|---|---|
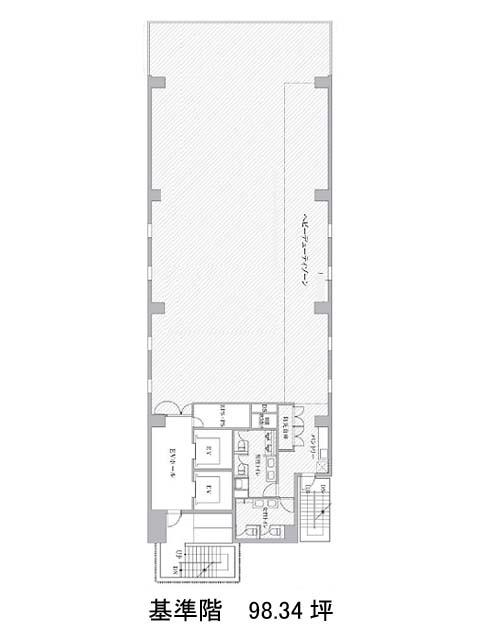
| 3 | 98.34坪 | 応相談(応相談) | 応相談 | 2026年4月上旬 |
…新着物件
PMO浜松町Ⅱのアクセス
PMO浜松町Ⅱの物件情報
PMO浜松町Ⅱ(港区芝公園)は大門駅(A6番出口)から徒歩2分の賃貸オフィスです。2020年竣工の地上9階建て、全面ガラス張りの物件です。基準階が約98坪あり、足元まである大きい窓からは十分な採光が望めます。周辺にはコンビニや飲食店、郵便局があり利便性も高いでしょう。ビル内にはOAフロアが備えられており、個別空調完備、トイレも男女別となっています。有料の会議室の利用も可能で、設備面が充実しております。そしてセキュリティは機械警備を導入していて、耐震性も新耐震基準であるため、安心です。PMO浜松町Ⅱは大門駅(A6番出口)の他に芝公園駅(A3番出口)徒歩6分、浜松町駅(北口)徒歩6分で利用も可能です。

