7階は現在募集がありません
2フロア募集区画あり

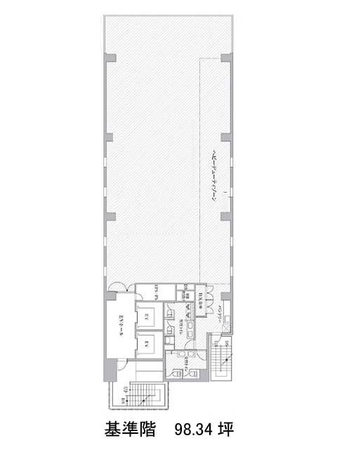
PMO浜松町Ⅱ 7階

前の写真 次の写真

物件概要

物件番号

128-00099-6

物件名

PMO浜松町Ⅱ

所在地

面積

98.34坪

賃料(共益費含)


入居日

募集終了

保証金

礼金

更新料

償却費

竣工

2020年8月

構造

規模

地上9階

トイレ

男女別

空調

個別空調

エレベーター

セキュリティ

駐車場

耐震

新耐震基準

基準階天井高

2750mm

空室延床面積

196.68坪

最寄駅

情報更新日

2025/11/07

PMO浜松町Ⅱのテナント募集中区画

階数 面積 賃料(共益費含む) 保証金 入居可能日 検討リスト 詳細
3 98.34坪 応相談(応相談) 応相談 相談
4 98.34坪 応相談(応相談) 応相談
…新着物件

アクセス

PMO浜松町Ⅱの物件情報

PMO浜松町Ⅱ(港区芝公園)は大門駅(A6番出口)から徒歩2分の賃貸オフィスです。
2020年竣工の地上9階建て、全面ガラス張りの物件です。基準階が約98坪あり、足元まである大きい窓からは十分な採光が望めます。周辺にはコンビニや飲食店、郵便局があり利便性も高いでしょう。ビル内にはOAフロアが備えられており、個別空調完備、トイレも男女別となっています。有料の会議室の利用も可能で、設備面が充実しております。そしてセキュリティは機械警備を導入していて、耐震性も新耐震基準であるため、安心です。
PMO浜松町Ⅱは大門駅(A6番出口)の他に芝公園駅(A3番出口)徒歩6分、浜松町駅(北口)徒歩6分で利用も可能です。

近隣のエリア・駅から探す