4階は現在募集がありません
1フロア募集区画あり

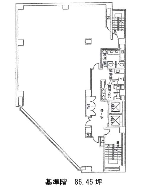
T&G浜松町ビル 4階

前の写真 次の写真

物件概要

物件番号

129-00124-30

物件名

T&G浜松町ビル

所在地

面積

86.45坪

賃料(共益費含)


入居日

募集終了

保証金

礼金

更新料

償却費

竣工

1988年12月

構造

SRC

規模

地上9階/地下1階

トイレ

男女別

空調

個別空調

エレベーター

セキュリティ

駐車場

耐震

新耐震基準

基準階天井高

2470mm

空室延床面積

74.00坪

最寄駅

情報更新日

2026/03/27

T&G浜松町ビルのテナント募集中区画

階数 面積 賃料(共益費含む) 保証金 入居可能日 検討リスト 詳細
3 74.00坪 1,790,800円/月(24,200円/坪) 1,642万円 2026年7月下旬
…新着物件

T&G浜松町ビルのアクセス

T&G浜松町ビルの物件情報

T&G浜松町ビル(港区芝大門)は大門駅(A3番出口)から徒歩5分の賃貸オフィスです。
第一京浜沿い角地の物件です。ガラス面が多く、外観からでも室内の採光性の良さが伺えます。エントランスホールは一部吹き抜けになっており、差し込む光が綺麗です。エレベーターは2基設置済みで、スムーズな昇降を実現。
貸室サイズはフロアによって若干異なりますが、それぞれ85坪前後の規模です。男女別トイレと給湯室はエレベーターホール側(室外)に設置されています。それらの共有部分と執務室への動線は複数確保されているため、使い勝手が良いでしょう。
セキュリティは機械警備を採用済み。全体的にグレード感の高い物件です。
T&G浜松町ビルは大門駅(A3番出口)の他に浜松町駅(南口1)徒歩6分、芝公園駅(A3番出口)徒歩6分で利用も可能です。

近隣のエリア・駅から探す