PMO芝大門のテナント募集中区画
| 階数 | 面積 | 賃料(共益費含む) | 保証金 | 入居可能日 | 検討リスト | 詳細 |
|---|---|---|---|---|---|---|
| 8 | 55.33坪 | 応相談(応相談) | 応相談 | 2026年6月上旬 |
…新着物件
アクセス
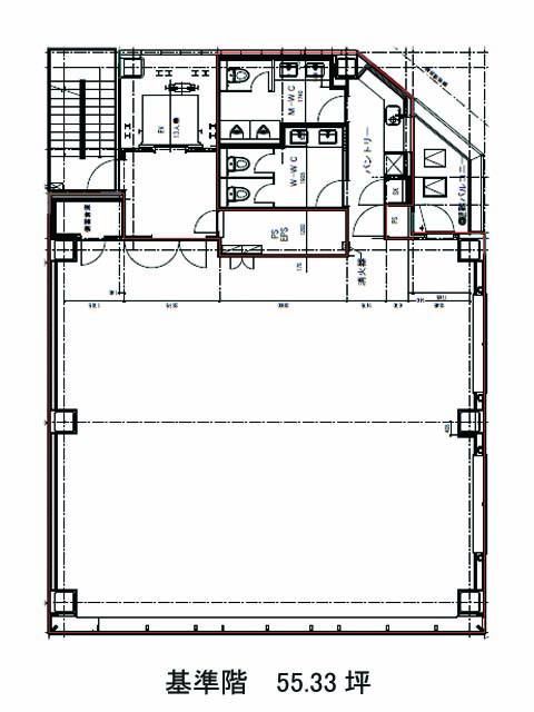
PMO芝大門の物件情報
PMO芝大門(港区芝大門)は御成門駅(A2番出口)から徒歩3分の賃貸オフィスです。2014年竣工、地上9階建の築浅ビルです。黒みがかったミラーガラス貼りの外壁で、スタイリッシュな外観をしています。基準階面積は55.33坪。中規模のオフィスをお探しの方によいでしょう。EV・駐車場・個別空調・機械警備・OAフロア・貸室外の男女別トイレといった充実の設備仕様。事務所は長方形のすっきりとした無柱空間で、オフィス家具のレイアウトがしやすいでしょう。エントランスまわりは植栽と間接照明で温かみのある演出が施されています。PMO芝大門は御成門駅(A2番出口)の他に大門駅(A6番出口)徒歩4分、浜松町駅(北口)徒歩9分で利用も可能です。

