7階は現在募集がありません
1フロア募集区画あり

PMO芝大門 7階

前の写真 次の写真

物件概要

物件番号

129-00228-60

物件名

PMO芝大門

所在地

面積

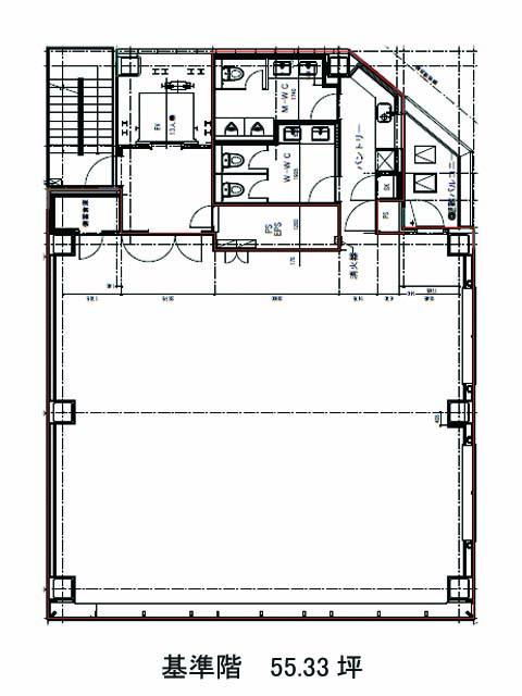
55.33坪

賃料(共益費含)


入居日

募集終了

保証金

礼金

更新料

償却費

竣工

2014年9月

構造

規模

地上9階

トイレ

男女別

空調

個別空調

エレベーター

セキュリティ

駐車場

耐震

新耐震基準

基準階天井高

2750mm

空室延床面積

55.33坪

最寄駅

情報更新日

2026/05/12

PMO芝大門のテナント募集中区画

階数 面積 賃料(共益費含む) 保証金 入居可能日 検討リスト 詳細
8 55.33坪 応相談(応相談) 応相談 2026年6月上旬
…新着物件

PMO芝大門のアクセス

PMO芝大門の物件情報

PMO芝大門(港区芝大門)は御成門駅(A2番出口)から徒歩3分の賃貸オフィスです。
2014年竣工、地上9階建の築浅ビルです。黒みがかったミラーガラス貼りの外壁で、スタイリッシュな外観をしています。基準階面積は55.33坪。中規模のオフィスをお探しの方によいでしょう。EV・駐車場・個別空調・機械警備・OAフロア・貸室外の男女別トイレといった充実の設備仕様。事務所は長方形のすっきりとした無柱空間で、オフィス家具のレイアウトがしやすいでしょう。エントランスまわりは植栽と間接照明で温かみのある演出が施されています。
PMO芝大門は御成門駅(A2番出口)の他に大門駅(A6番出口)徒歩4分、浜松町駅(北口)徒歩9分で利用も可能です。

近隣のエリア・駅から探す