+SHIFT SHIBADAIMONのテナント募集中区画
| 階数 | 面積 | 賃料(共益費含む) | 保証金 | 入居可能日 | 検討リスト | 詳細 |
|---|---|---|---|---|---|---|
| 1 | 44.99坪 | 1,385,692円/月(30,800円/坪) | 755万円 | 2026年4月上旬 | ||
| 5 | 77.89坪 | 2,570,370円/月(33,000円/坪) | 1,635万円 | 即 | ||
| 6 | 77.89坪 | 2,570,370円/月(33,000円/坪) | 1,635万円 | 即 |
…新着物件
+SHIFT SHIBADAIMONのアクセス
+SHIFT SHIBADAIMONの物件情報
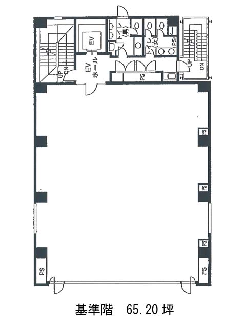
+SHIFT SHIBADAIMON(港区芝大門)は大門駅(A6番出口)から徒歩2分の賃貸オフィスです。1990年竣工の地上8階、地下1階建てのビルです。外観は落ち着いた色合いで、とてもスタイリッシュな印象があります。また周辺にはコンビニや飲食店、郵便局などがあり、とても利便性が高いです。ビル内には個別空調が完備されており、エレベーターは1基設置されております。セキュリティは機械警備を導入していて、耐震性も新耐震基準であるため、安心です。そして基準階は約65坪あり、室内は長方形の整形オフィスのため、効率の良いレイアウトが組めそうです。+SHIFT SHIBADAIMONは大門駅(A6番出口)の他に浜松町駅(北口)徒歩6分、芝公園駅(A3番出口)徒歩6分で利用も可能です。

