8階は現在募集がありません
3フロア募集区画あり

+SHIFT SHIBADAIMON 8階

前の写真 次の写真

物件概要

物件番号

129-00053-90

物件名

+SHIFT SHIBADAIMON

所在地

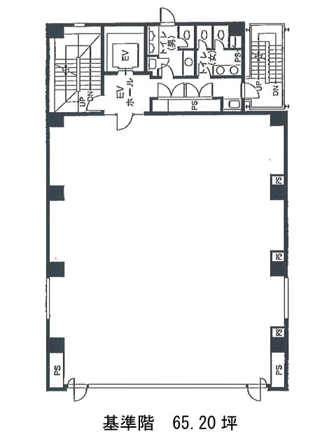
面積

65.19坪

賃料(共益費含)


入居日

募集終了

保証金

礼金

更新料

償却費

竣工

1990年1月

構造

SRC

規模

地上8階/地下1階

トイレ

男女別

空調

個別空調

エレベーター

セキュリティ

駐車場

耐震

新耐震基準

基準階天井高

空室延床面積

200.77坪

最寄駅

情報更新日

2026/04/07

+SHIFT SHIBADAIMONのテナント募集中区画

階数 面積 賃料(共益費含む) 保証金 入居可能日 検討リスト 詳細
1 44.99坪 1,385,692円/月(30,800円/坪) 755万円 2026年5月上旬
5 77.89坪 2,570,370円/月(33,000円/坪) 1,635万円
6 77.89坪 2,570,370円/月(33,000円/坪) 1,635万円
…新着物件

+SHIFT SHIBADAIMONのアクセス

+SHIFT SHIBADAIMONの物件情報

+SHIFT SHIBADAIMON(港区芝大門)は大門駅(A6番出口)から徒歩2分の賃貸オフィスです。
1990年竣工の地上8階、地下1階建てのビルです。外観は落ち着いた色合いで、とてもスタイリッシュな印象があります。また周辺にはコンビニや飲食店、郵便局などがあり、とても利便性が高いです。ビル内には個別空調が完備されており、エレベーターは1基設置されております。セキュリティは機械警備を導入していて、耐震性も新耐震基準であるため、安心です。そして基準階は約65坪あり、室内は長方形の整形オフィスのため、効率の良いレイアウトが組めそうです。
+SHIFT SHIBADAIMONは大門駅(A6番出口)の他に浜松町駅(北口)徒歩6分、芝公園駅(A3番出口)徒歩6分で利用も可能です。

近隣のエリア・駅から探す