芝藤ビルのテナント募集中区画
| 階数 | 面積 | 賃料(共益費含む) | 保証金 | 入居可能日 | 検討リスト | 詳細 |
|---|---|---|---|---|---|---|
| 1 | 33.00坪 | 762,300円/月(23,100円/坪) | 554万円 | 即 | ||
| 3 | 40.00坪 | 704,000円/月(17,600円/坪) | 384万円 | 即 |
…新着物件
芝藤ビルのアクセス
芝藤ビルの物件情報
芝藤ビル(港区芝大門)は大門駅(A6番出口)から徒歩4分の賃貸オフィスです。外観はグレーの石張りで堅牢な印象。都心の主要エリアに位置しながらも、程よく落ち着いた雰囲気が漂っています。
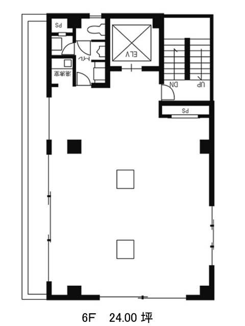
基準階は40坪。室内には柱があるため、レイアウトの工夫が求められる点はありますが、そのぶん壁面を活かしたレイアウトも組みやすい印象です。
コンパクトサイズながら、トイレは男女別でしっかり確保されている点が嬉しいポイント。フロアによっては水回りのリニューアルが施されている可能性もあるため、内見時にはチェックしてみるとよさそうです。芝藤ビルは大門駅(A6番出口)の他に御成門駅(A2番出口)徒歩5分、浜松町駅(北口)徒歩9分で利用も可能です。

