4階は現在募集がありません
矢崎ホワイトビル 4階
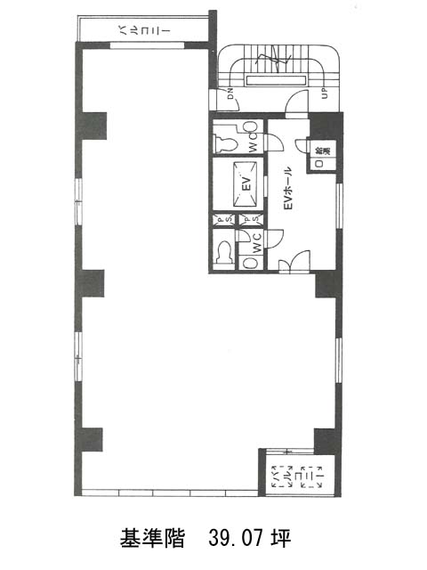
物件概要
矢崎ホワイトビルのテナント募集中区画
現在、空室がございません。
アクセス
矢崎ホワイトビルの物件情報
矢崎ホワイトビル(港区芝大門)は大門駅(A3番出口)から徒歩4分の賃貸オフィスです。矢崎ホワイトビルは大門駅(A3番出口)の他に浜松町駅(南口1)徒歩6分、モノレール浜松町駅(中央口)徒歩6分で利用も可能です。

