富士ビルのテナント募集中区画
| 階数 | 面積 | 賃料(共益費含む) | 保証金 | 入居可能日 | 検討リスト | 詳細 |
|---|---|---|---|---|---|---|
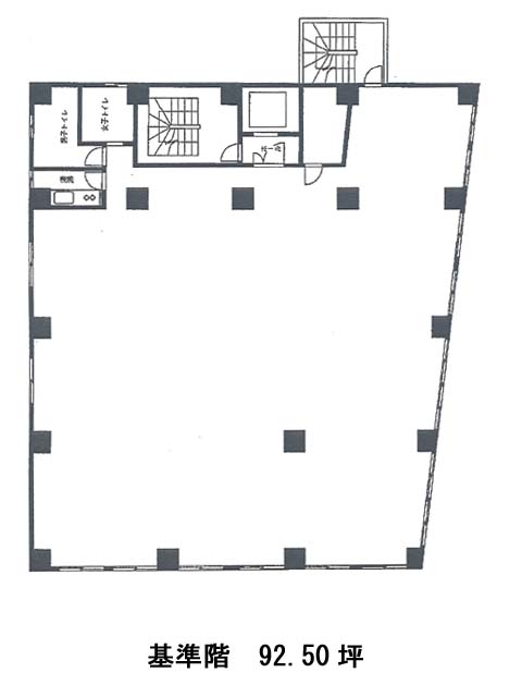
| 2 | 92.50坪 | 1,526,250円/月(16,500円/坪) | 869万円 | 2026年4月中旬 |
…新着物件
アクセス
富士ビルの物件情報
富士ビル(港区芝大門)は大門駅(A6番出口)から徒歩4分の賃貸オフィスです。富士ビルは大門駅(A6番出口)の他に芝公園駅(A3番出口)徒歩5分、浜松町駅(南口1)徒歩5分で利用も可能です。

