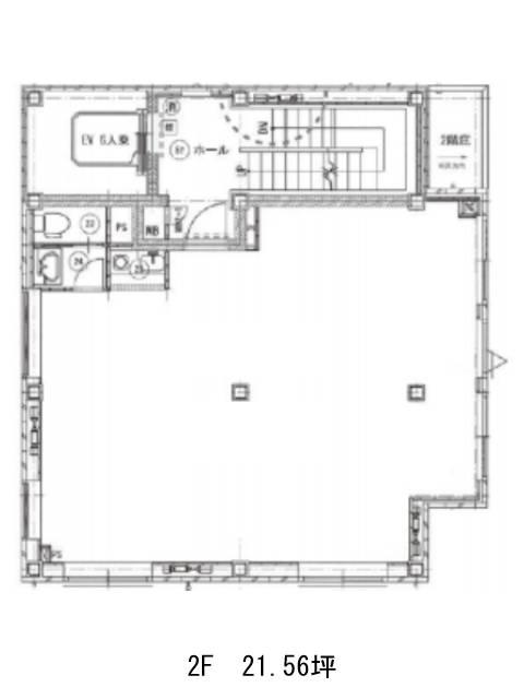
2階は現在募集がありません
第2喜久ビル 2階
物件概要
第2喜久ビルのテナント募集中区画
現在、空室がございません。
アクセス
第2喜久ビルの物件情報
第二喜久ビル(港区芝大門)は大門駅(A6番出口)から徒歩1分の賃貸オフィスです。第二喜久ビルは大門駅(A6番出口)の他に浜松町駅(北口)徒歩5分、モノレール浜松町駅(中央口)徒歩6分で利用も可能です。

