ユースクエア新橋ビルのテナント募集中区画
| 階数 | 面積 | 賃料(共益費含む) | 保証金 | 入居可能日 | 検討リスト | 詳細 |
|---|---|---|---|---|---|---|
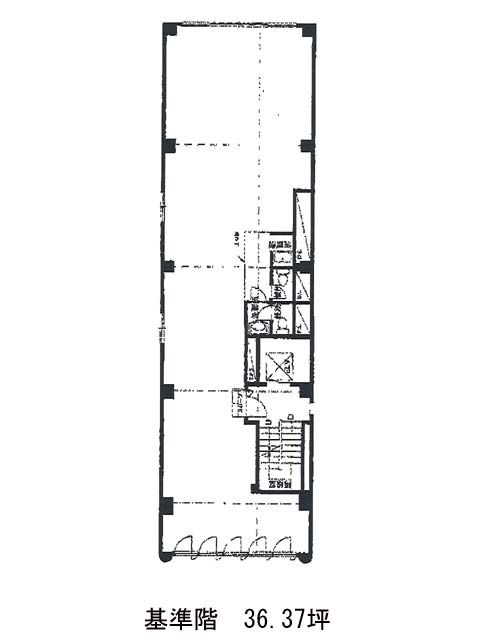
| 4 | 36.37坪 | 応相談(応相談) | 応相談 | 相談 | ||
| 5 | 32.21坪 | 応相談(応相談) | 応相談 | 相談 |
…新着物件
アクセス
ユースクエア新橋ビルの物件情報
ユースクエア新橋ビル(港区新橋)は内幸町駅(A1番出口)から徒歩2分の賃貸オフィスです。外観はシンプルなデザインです。エントランスホールやエレベーターホールは落ち着いた空間となっております。また周辺には、コンビニや飲食店、銀行などがあるため、利便性が高いです。室内は、基準階が約36坪あり、ほぼ長方形の形をしているため、比較的レイアウトは組みやすいでしょう。ビル内にはOAフロアが備えられております。セキュリティは機械警備を導入しており、耐震性も新耐震基準であるため、安心です。ユースクエア新橋ビルは内幸町駅(A1番出口)の他に新橋駅(6番出口)徒歩4分、虎ノ門駅(9番出口)徒歩7分で利用も可能です。

