明宏ビル本館のテナント募集中区画
| 階数 | 面積 | 賃料(共益費含む) | 保証金 | 入居可能日 | 検討リスト | 詳細 |
|---|---|---|---|---|---|---|
| 5 | 26.70坪 | 499,290円/月(18,700円/坪) | 373万円 | 相談 | ||
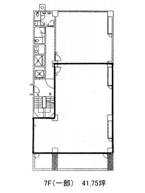
| 7 | 50.21坪 | 938,927円/月(18,700円/坪) | 702万円 | 相談 |
…新着物件
アクセス
明宏ビル本館の物件情報
明宏ビル本館(港区新橋)は内幸町駅(A2番出口)から徒歩2分の賃貸オフィスです。緑色のレンガ張りが個性的な外観をしています。テナントはオフィス・貸し会議室等が入居しています。1972年竣工ですが管理状態が良く綺麗な状態です。オフィスは24時間使用可能で、貸室外の男女別トイレはビル側が清掃を担います。EV2基・駐車場・個別空調があります。周辺はホテルや多くの飲食店が建ち並ぶエリアで、多様なジャンルの食事を楽しめるでしょう。前面道路は1車線の一方通行です。隣地にあるホテルの植栽を借景としてお楽しみ頂けるでしょう。明宏ビル本館は内幸町駅(A2番出口)の他に新橋駅(7番出口)徒歩4分、日比谷駅(A13番出口)徒歩7分で利用も可能です。

