3階は現在募集がありません
1フロア募集区画あり

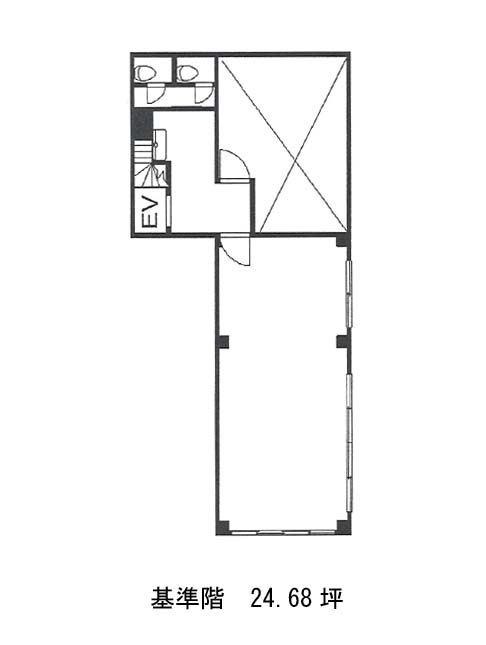
藤代ビル 3階

前の写真 次の写真

物件概要

物件番号

130-00250-30

物件名

藤代ビル

所在地

面積

24.68坪

賃料(共益費含)


入居日

募集終了

保証金

礼金

更新料

償却費

竣工

1973年1月

構造

SRC

規模

地上8階

トイレ

不明

空調

個別空調

エレベーター

セキュリティ

駐車場

耐震

旧耐震基準

基準階天井高

空室延床面積

24.68坪

最寄駅

情報更新日

2026/02/10

藤代ビルのテナント募集中区画

階数 面積 賃料(共益費含む) 保証金 入居可能日 検討リスト 詳細
5 24.68坪 325,776円/月(13,200円/坪) 177万円
…新着物件

藤代ビルのアクセス

藤代ビルの物件情報

藤代ビル(港区新橋)は内幸町駅(A1番出口)から徒歩7分の賃貸オフィスです。
藤代ビルは内幸町駅(A1番出口)の他に御成門駅(A4番出口)徒歩7分、新橋駅(A1番出口)徒歩7分で利用も可能です。

近隣のエリア・駅から探す