藤代ビル 5階 A
物件概要
物件番号
130-00250-70物件名
藤代ビル所在地
- 東京都港区新橋4-30-4
- アクセスマップ
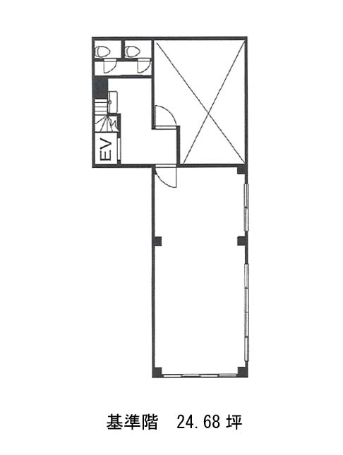
面積
24.68坪賃料(共益費含)
月額325,776円(13,200円/坪)
入居日
即保証金
1,776,960円礼金
なし更新料
新1ケ月償却費
2ケ月竣工
1973年1月構造
SRC規模
地上8階トイレ
男女別空調
個別空調エレベーター
有セキュリティ
駐車場
無耐震
旧耐震基準基準階天井高
空室延床面積
24.68坪情報更新日
2026/02/10藤代ビルのテナント募集中区画
| 階数 | 面積 | 賃料(共益費含む) | 保証金 | 入居可能日 | 検討リスト | 詳細 |
|---|---|---|---|---|---|---|
| 5 | 24.68坪 | 325,776円/月(13,200円/坪) | 177万円 | 即 |
…新着物件
藤代ビルのアクセス
藤代ビルの物件情報
藤代ビル(港区新橋)は内幸町駅(A1番出口)から徒歩7分の賃貸オフィスです。藤代ビルは内幸町駅(A1番出口)の他に御成門駅(A4番出口)徒歩7分、新橋駅(A1番出口)徒歩7分で利用も可能です。

